Project
verbouw woonboerderij

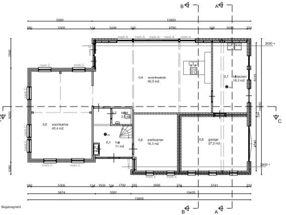
Dit project bestaat uit het deels slopen van het achterhuis van de woonboerderij en het slopen van het bijgebouw, het intern wijzigen van het woonhuis, het bouwen van een nieuw bijgebouw.

Locatie

??????

Opdracht

Verbouwing woonboerderij

Odrachtgever

???????????

bekijk hier meer ontwerpen